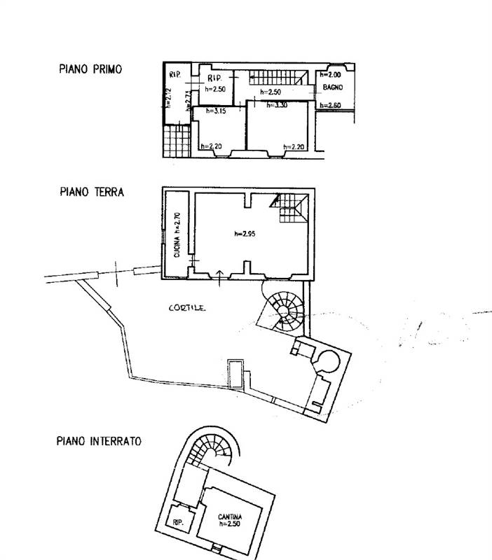
Description


Principales caractéristiques

État immeuble
Restructuré
Degré
Élégant
Position
Colline
Panorama
Vue Ouverte
Position
Sud
Côtés libres
3
Jardin
Privé
Meubles
Meublé
Type de résidence
Rester
Type Cuisine
Habitable
Chauffage
Chaufage individuel
Tipo Impianto
Autre
Fonte Energetica
Pellets
Eau Chaude
Autonome
Refroidissement
Divisé
Ouvertures/Fermetures
Bois double vitrage
Fenêtres
Excellentes
Volet
Store en bois
Sol salon
Parquet
Sol chambre à coucher
Parquet
Sol cuisine
Parquet
Accessoires: Antivol, Climatisation, Cheminée, Double vitrage, Toilettes, Poêle à pellets, Moustiquaires

Vidéo

Cookie preference