Descrizione

In posizione eccezionale e panoramica con vista sulla bellissima Giano Dell’Umbria, proponiamo in vendita casa singola con giardino e uliveto circostante.
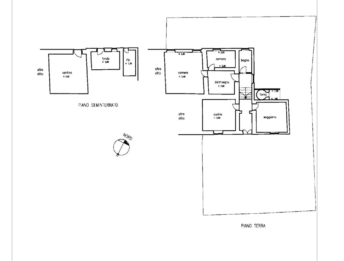
La casa è disposta su unico livello ed è composta da: ingresso, salone, cucina, bagno, tre camere.
Completano la proprietà ampio garage, cantina di pertinenza e forno esterno,
Prezzo richiesto €60.000


Caratteristiche principali

Stato Immobile
Buono
Grado
Medio
Posizione
Centro
Panorama
Vista Aperta
Orientamento
Sud Ovest
Lati Liberi
4
Giardino
Privato
Arredi
Non Arredato
Tipo Soggiorno
Soggiorno
Tipo Cucina
Abitabile
Riscaldamento
Autonomo
Tipo Riscaldam.
Caldaia
Tipo Impianto
Radiatori
Fonte Energetica
Metano
Acqua Calda
Autonoma
Accessori:

Cookie preference